@nilshermann Er det liv i nord? Hvordan gikk dette prosjektet?
Syns du diskanten er på riktig nivå? Stort fall over delefrekvensenHei!
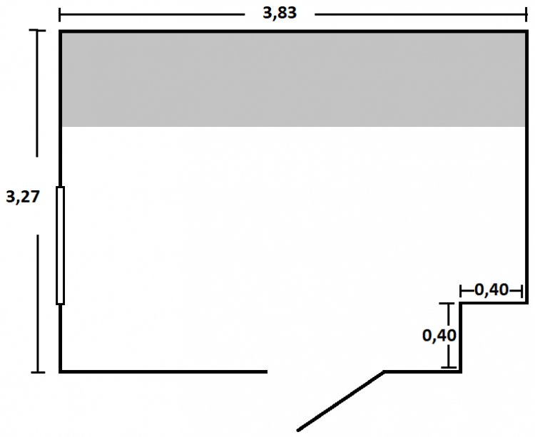
Driver å undersøker om å flytte lyden fra stua og over i ett av soverommene blir bedre. Rommet har 12,5 m2 gulvflate som jo er i minste laget, skrått tak på den ene siden og en kvadratisk "søyle" (murpipe) i det ene hjørnet. Det er panel på veggene og det er ett vindu. Se tegninger og bilder. Det grå feltet er området med skrått tak. Rommet er i et eldre trehus.
Skråtak: Har prøvd å søke i forumet for å finne ut av hva folk vet og mener om skråtak, uten å finne noe særlig om det. Er det bevis for eller meninger om at det er best å ha skråtaket på frontvegg, sidevegg eller bakvegg?
Vinduet får være der det er, men det beste hadde vel vært å hatt vindusveggen om en sidevegg og ikke frontvegg eller bakvegg?
Kasta ut senga og litt til i kveld. Et større klesskap bak krakken skal også ut om jeg går for dette rommet. Satte i første omgang opp anlegget på vindusveggen for enkelhetens skyld (strømuttak, og klesskap i motsatt ende), kjørte noen målinger og korrigerte med Dirac (20-500hz). Det ble noe bedre, men føler at jeg ble litt ør etter en time der inne (kan muligens være dagsformen). Kan det være klangen i rommet? Det er jo forholdsvis tomt der nå. Se målinger; en ukorrigert og en korrigert med Dirac. Er det andre målinger jeg kan ta for å finne utfordringer? Alt dette med målinger er nytt for meg. Jeg kom bort i det ved kjøp av nylig innkjøpt forforsterker (C658) der det fulgte med Dirac og målemic.
Om rommet skal brukes til lyd er jeg åpen for tiltak. Hvilke tiltak kan være lavthengende frukter? Diffusorer? Har lest det kan hjelpe i små rom. Det kommer en sovesofa i lytteposisjon, et bord for kaffekoppen og et tykt ullteppe på gulvet. Bortsett fra det er ingenting planlagt.
Jeg vil de neste dagene teste ulike plasseringer og retninger i rommet.
Utstyr er NAD C658, NAD C375BEE, B&W 705s2. Jeg hører på et bredt spekter av musikksjangre; klassisk, vise, jass, blues, metall, punk, pop. Stort sett alt unntatt RAP, R&B og country.
Vis vedlegget 567088 Vis vedlegget 567089 Vis vedlegget 567090 Vis vedlegget 567091 Vis vedlegget 567086 Vis vedlegget 567087
Hei! Rommet er satt på pause pga at det må brukes til hjemmekontor@nilshermann Er det liv i nord? Hvordan gikk dette prosjektet?
